Дам офисное помещение., 36578

Одесса, Киевский р-н, Таирова, ул. Небесной Сотни проспект

  • Площадь: 70 м²
  • Площадь участка: 0 соток
  • Количество комнат: 2
  • Этаж: 4/9
  • Состояние: Евроремонт
  • Санузел:
  • Код объекта: 36578
  • Материал:
  • 📅 17:11:2025
  • 👁 1

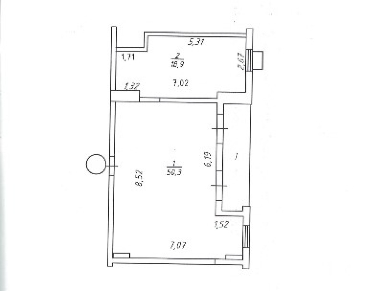
36578. Сдаётся офисное помещение в БЦ Акварель. Общей площадью 70 КВ.м. Хороший ремонт. Есть парковка. Два кондиционера, комфортный средний этаж. Есть возможность перепланировки. На данный момент офис состоит из одного большого зала в 50 квадратных метров, и +отдельный кабинет. Есть просторный балкон.

Похожие варианты
Смотреть все

Агентство недвижимости «FAKTOR» – квалифицированная помощь для приобретения жилья в Одессе

Обращение в агентство недвижимости «FAKTOR» поможет избежать рисков, которые обычно возникают в процессе сделки при продаже, приобретении или аренде дома, квартиры, земельного участка. Привлечение риелторов для сопровождения подобного процесса – это оптимальный способ грамотно подготовиться и получить комплексное сопровождение на всех этапах сделки.

Почему так популярна недвижимость в Одессе?

Солнечный город с неповторимым южным колоритом не только один из самых крупных мегаполисов Украины, но и регион с постоянной динамикой развития и масштабного строительства. Кроме высокого уровня жизни и близости ласкового Черного моря есть также большой выбор жилья:

  • для поклонников старой Южной Пальмиры это зоны с утопающими в зелени дворами и уютными тихими переулками;
  • более лояльная цена квартир предлагается на объекты в спальных районах;
  • выше стоимость в элитных новостройках с грамотно спланированной инфраструктурой;
  • многие инвесторы предпочитают купить частный дом или коттедж на некотором отдалении от суеты, присущей местам расположения многоэтажных зданий.

Посетив сайт недвижимости «FAKTOR», можно без труда выбрать квартиру на престижном Французском бульваре с видом на роскошные восходы и закаты, приобрести по выгодной цене недвижимость в Одессе в одном из легендарных одесских двориков, стать владельцем частного дома в области или земельного участка под будущую застройку.

Помощь профессионалов по всем вопросам вложения средств в недвижимость

Обилие предложение на вторичном рынке и в новостройках для непосвященного человека поразительно своим обширным диапазоном по вариантам планировки, району расположения здания, различием в ценах. Без глубокого знания специфики рынка понять существенную разницу в стоимости за 1 м2 приблизительно одинаковых по площади и расположенных поблизости объектов очень проблематично.

Сориентироваться во всех подобных хитросплетениях поможет помощь компетентного риелтора. Сотрудничество с профессионалом позволяет оперативно и выгодно совершить покупку в одном из следующих форматов:

  • жилье в новострое с проведенным ремонтом или в черновом состоянии;
  • популярные смарт-квартиры;
  • земельный участок с гарантированной хорошей ликвидностью;
  • коммерческую недвижимость.

Мы подберем лучший вариант для самых взыскательных клиентов!

Преимущества покупки и аренды квартиры или дома в Одессе с агентством недвижимости «FAKTOR»

Несколько причин объясняют преимущества обращения к профессиональным риелторам.

Объективная картина сделки

Одной из главных обязанностей каждого нашего сотрудника является предоставление клиентам полной информации обо всех достоинствах и имеющихся недостатках объекта продажи. У большинства обычных граждан отсутствует достаточная компетентность для сбора и информации.

Обеспечение безопасности

Мы сможем полностью оградить клиента от риска мошеннических действий при совершении покупки. Ведь нередко под объявлением о желании общаться с покупателями без посредников скрываются преступники.

Второй важный момент – личные интересы двух сторон сделки практически всегда существенно расходятся. Агентство недвижимости «FAKTOR» предлагает помощь риелторов, которые обладают знаниями и ресурсом для проверки достоверности информации о предмете продажи. Еще один существенный фактор – безопасное выполнение взаиморасчетов. Это дает уверенность, что деньги перечислены нужному лицу и вы становитесь законным собственником жилья.

Поиск лучшего варианта

При всем огромном диапазоне предложений, подобрать лучший для себя вариант не так просто. Наш агент успешно справиться с задачей экономии времени на поиск оптимального варианта благодаря пониманию актуальных тенденций на рынке, умению грамотно анализировать все данные.

Документация

«FAKTOR» – это идеальный выбор консультанта по проверке подлинности документов, истории дома или квартиры, соответствия нормативам отчуждения. Такой комплексный подход позволит до мелочей проверить юридическую чистоту предмета купли.

Передача квартиры

В завершение мы поможем в осуществлении контроля за снятием объекта с регистрации, отсутствия задолженностей по коммунальным услугам, своевременного освобождения жилплощади бывшими собственниками.

Если вы хотите обезопасить себя от возможных рисков и купить квартиру или дом в Одессе по реальной рыночной цене, пользуйтесь услугами агентства недвижимости «FAKTOR» – компании с безупречной репутацией и большим опытом успешной деятельности в своем сегменте рынка услуг.

С нами всегда можно добиться компромиссного варианта сделки, устраивающего и продавца, и покупателя!